Nội Thất Nhà Gỗ 5 Gian Có Hậu Cung Đẹp Sang Trọng – Tuyệt Tác Chạm Khắc Tinh Xảo
Nội thất nhà gỗ 5 gian có hậu cung
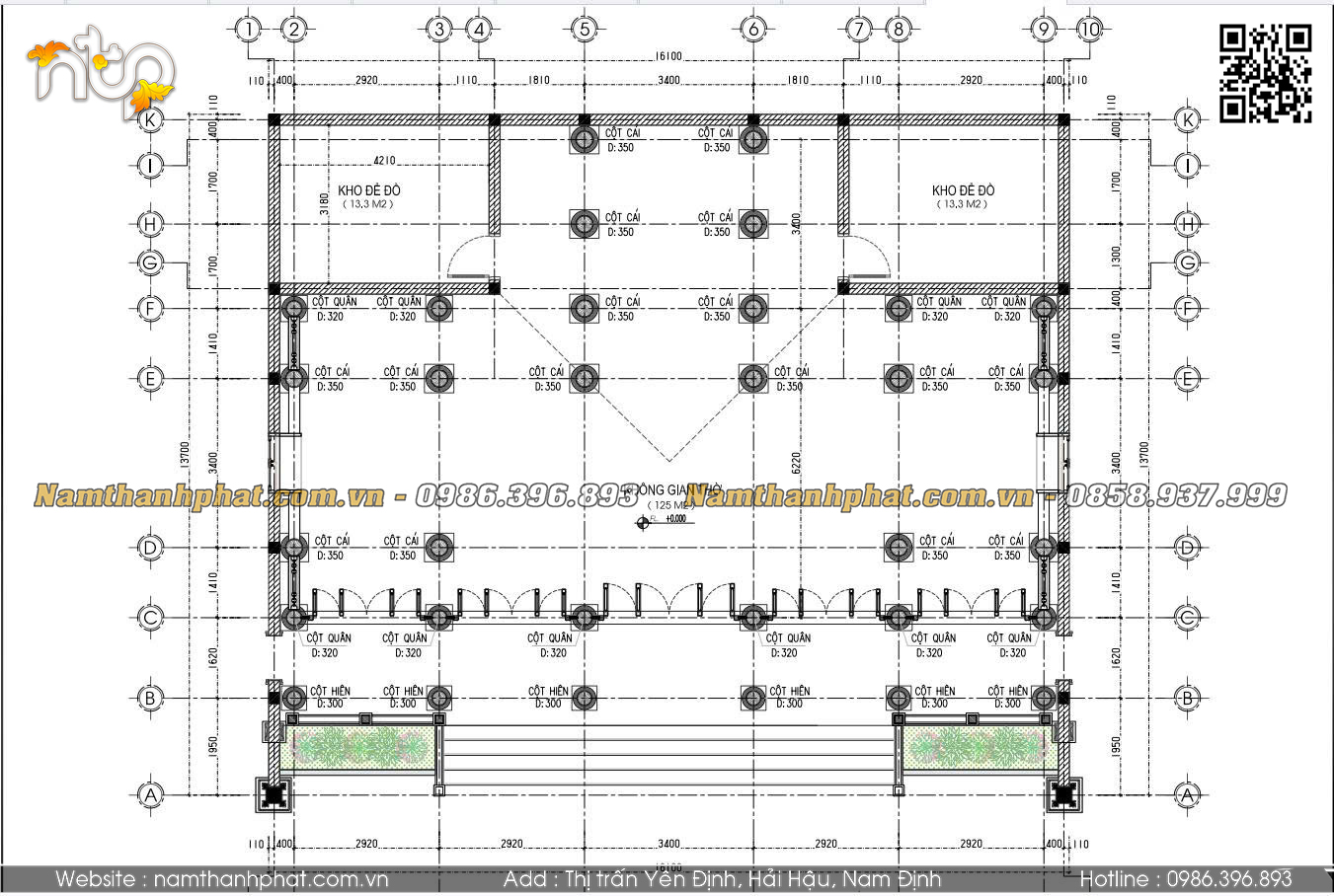
I. Tổng quan thông tin về nội thất nhà gỗ 5 gian
- Công trình: Nhà thờ 5 gian có hậu cung, 2 bên là phòng kho để đồ xây tường đổ mái bằng
- Địa chỉ: TP Hà Nội
- Diện tích nhà 197m2, ngang*sâu phủ bì là: 16m1*12m25. Không gian nội thất 125m2, kích thước gian giữa 3m4, các gian còn lại 2m9.
- Tổng 32 cột gỗ, đường kính các cột lần lượt là 35, 32 và 30cm.
- Chủng loại gỗ: Gỗ Lim Nam Phi xanh Tali
- Công năng: Nhà thờ tổ kết hợp tiếp khách

Không gian 3 gian chính nhà gỗ 5 gian có hậu cung

Mặt bằng công năng nhà gỗ 5 gian có hậu cung
II. Đặc điểm nổi bật nhà gỗ 5 gian có hậu cung
Không gian 5 gian rộng lớn, bề thế chuẩn mực nhà gỗ truyền thống cao cấp

Choáng ngợp với toàn cảnh không gian nội thất 5 gian bề thế.
- Tổng thể bố cục 5 gian cân đối tạo cảm giác uy nghi, đẳng cấp.
- Hệ cột cái, cột quân to khỏe giúp không gian thêm vững chãi và đồ sộ.
- Thiết kế 5 gian thông nhau rộng rãi, có chiều sâu lớn tạo nên sự thoáng đãng hiếm có.
- Sự kết hợp giữa quy mô lớn và kết cấu chuẩn mực giúp công trình vừa sang trọng vừa trường tồn.
Hậu cung thiết kế trang nghiêm – Điểm nhấn làm nên đẳng cấp khác biệt

Không gian thờ cúng trang trọng tại phần hậu cung.
- Không gian hậu cung tôn cao giá trị thờ cúng, thể hiện sự chỉn chu và thành kính.
- Bố trí ban thờ, cửa võng 3 lớp, đại tự, câu đối theo đúng truyền thống từ xưa, linh thiêng vô cùng.
- Hậu cung được bố trí riêng biệt phía sau, tăng chiều sâu không gian thờ tự và giá trị kiến trúc.
- Khu vực trung tâm ấn tượng với đồ thờ chạm thủ công tinh mỹ, dát vàng điểm nhất nổi bật
- Hậu cung giúp tổng thể nội thất trở nên bề thế hơn so với nhà gỗ 5 gian thông thường.
- Thiết kế hậu cung cũng mang ý nghĩa phong thủy - được xem là nở hậu giúp hút tài lộc, may mắn cho mọi người. Do vậy rất được ưa chuộng với các công trình tâm linh.
Nghệ thuật chạm khắc tinh xảo trên từng cấu kiện gỗ

- Đục chạm sắc nét trên vì kèo, kẻ hiên, bẩy, con rường, xà nách.
- Các họa tiết truyền thống như tứ quý, long – lân – quy – phụng, hoa lá, chữ Phúc được thể hiện sống động.
- Từng đường nét có chiều sâu, độ mềm mại và tính nghệ thuật cao.
- Chạm khắc không chỉ đẹp mà còn thể hiện giá trị văn hóa và phong thủy.
- Sự đồng bộ trong hoa văn giúp toàn bộ không gian trở thành một tuyệt tác hoàn chỉnh.
Vẻ đẹp sang trọng đến từ chất liệu gỗ tự nhiên cao cấp

- Màu sắc gỗ trầm ấm tạo cảm giác quyền quý và gần gũi.
- Vân gỗ sắc nét giúp nâng tầm giá trị thẩm mỹ tổng thể.
- Chất liệu gỗ cao cấp càng làm nổi bật độ tinh xảo của các mảng chạm trổ.
- Nội thất càng sử dụng lâu càng lên màu đẹp, gia tăng giá trị theo thời gian.
- Đây là yếu tố cốt lõi tạo nên vẻ đẹp sang trọng bền vững.
Sự đồng bộ giữa trần, vách, cửa bức bàn và hệ thống nội thất

Mãn nhãn với các chi tiết chạm khắc thủ công tinh xảo trên các cấu kiện nhà gỗ.
- Trần gỗ, vách thuận, cửa võng, án gian, trường kỷ… được thiết kế thống nhất phong cách.
- Các mảng tường gỗ kín tạo cảm giác ấm cúng nhưng vẫn bề thế.
- Cửa bức bàn, ô thoáng, tranh chạm góp phần tăng chiều sâu thẩm mỹ.
- Từng chi tiết liên kết chặt chẽ, tạo nên tổng thể xa hoa nhưng không rối mắt.
- Đây là tiêu chí quan trọng trong các mẫu nhà gỗ 5 gian có hậu cung cao cấp.

Cửa bức bàn và thông phong chạm khắc 2 mặt - phần mặt tiền bộ mặt của ngôi nhà được chăm chút kỹ lưỡng
Giá trị phong thủy và truyền thống trong không gian sống
- Bố cục chuẩn truyền thống Bắc Bộ đề cao sự cân bằng và tính kết nối thế hệ.
- Hậu cung giúp tăng tính tôn nghiêm cho khu vực thờ cúng tổ tiên.
- Không gian vừa phục vụ sinh hoạt vừa lưu giữ giá trị văn hóa gia đình.
- Thể hiện vị thế, gu thẩm mỹ và sự trân trọng truyền thống của gia chủ.
III. Kết luận - Nam Thành Phát thiết kế thi công nhà gỗ 5 gian có hậu cung uy tín.