Top Các Mẫu Mặt Bằng Nhà 3 Gian 2 Chái Đẹp Phù Hợp Đại Đa Số Các Gia Đình Hiện Nay

Top Các mẫu mặt bằng nhà 3 gian 2 chái đẹp cùng phối cảnh 3D trực quan sinh động, vô cùng dễ hình dung.

Nhắc đến nhà gỗ cổ truyền, đặc biệt là kiểu nhà 3 gian 2 chái Bắc bộ thì hiện nay không thiếu gì các mẫu nhà từ phối cảnh 3D đến hình ảnh thực tế. Tuy nhiên có rất nhiều câu hỏi của CĐT khi tìm đến với Nhà gỗ AFP Nam Thành Phát như:

+ Chú ưng ý mẫu nhà này thì nên làm kích thước bao nhiêu là đẹp?

+ Quỹ đất của nhà cô như thế này, công năng cô cần như thế này thì kích thước bao nhiêu là phù hợp?

+ Kích thước này anh đã chọn nhưng không biết có hợp phong thủy không, có phạm phải điều cấm kỵ gì không? Các em tư vấn cho anh.

Thấu hiểu được những băn khoăn và vướng mắc của quý khách hàng, chúng tôi đã tổng hợp lại các mặt bằng nhà 3 gian 2 chái đẹp và gửi đến quý vị bài viết này như 1 lời giải đáp cho bài toán khó mà quý vị đang gặp. 

I. Nhà gỗ 3 gian 2 chái là gì?

Nhà 3 gian 2 chái Bắc Bộ hay còn gọi là nhà 5 gian 2 buồng lồi là kiểu nhà gỗ cổ truyền có 5 gian, trong đó 3 gian giữa xây thụt vào trong có hàng hiên truyền thống cùng 2 gian đầu hồi xây lồi ra hết phần hiên (thường được gọi là chái) theo kết cấu 3 thụt 2 thò. 3 gian giữa thường là không gian thờ cúng kết hợp tiếp khách, bày trí đồ đạc, cũng có thể kê thêm giường hoặc sập để nghỉ trưa. 2 gian bên đầu hồi là không gian ngủ nghỉ, sinh hoạt hoặc đựng đồ đạc. Ngày nay 2 gian chái thường được sử dụng làm phòng ngủ có đầy đủ WC khép kín thuận tiện cho sinh hoạt.

Nhà gỗ 3 gian 2 chái trên tầng 2 làm bằng gỗ Lim Lào cực đẹp.

Nhà 3 gian 2 chái thường được xây tường vách hậu và 2 vách đầu hồi 2 bên, phần mái lợp ngói đỏ Hạ Long truyền thống, có kết hợp đắp bờ nóc và đấu nóc từ đơn giản đến cầu kỳ vô cùng đẹp mắt.

Hình ảnh 3 gian giữa với không gian thờ cúng kết hợp tiếp khách oai nghiêm và sang trọng.

II. Top các mẫu mặt bằng nhà gỗ 3 gian đẹp, phù hợp với đa số các gia đình.

1. Mặt bằng nhà 3 gian 2 chái kích thước tiêu chuẩn.

Dưới đây là 2 mẫu mặt bằng được coi là tiêu chuẩn, được các KTS của Nhà gỗ AFP Nam Thành Phát tìm tòi và nghiên cứu kỹ lưỡng, vừa đảm bảo các kích thước rơi vào cung đỏ theo thước lỗ ban phong thủy, lại vô cùng thuận tiện cho sinh hoạt thường ngày cũng như bày trí, sắp xếp đồ đạc..

Phối cảnh chính diện nhà gỗ 3 gian 2 chái Bắc Bộ kích thước tiêu chuẩn của gia chủ Vĩnh Phúc.

Mặt bằng nhà gỗ 3 gian 2 chái kích thước tiêu chuẩn.

=> Mặt bằng nhà 3 gian 2 chái cho ta một số thông số kỹ thuật:

+ Kích thước phủ bì 16,32m*9m (không tính tam cấp), với gian giữa 3,22m và 4 gian còn lại 3,02m.

+ Căn nhà có tổng 20 cột gỗ, với 6 cột cái D36cm, 8 cột quân D33cm và 6 cột hiên 29cm.

+ 2 buồng ngủ vô cùng rộng rãi với diện tích 28m2, khép kín vệ sinh đầy đủ và tiện nghi. Hai vách thuận bưng gỗ đục tranh có trổ cửa nách sang 2 buồng tiện cho việc đi lại.

Hình ảnh nhà gỗ 3 gian 2 chái gỗ Lim Nam Phi.

Mặt bằng nhà 3 gian 2 chái kích thước tiêu chuẩn có nới rộng thêm phần nhà vệ sinh.

Mặt bằng nhà 3 gian 2 chái này có một điểm khác biệt so với mặt bằng kích thước tiêu chuẩn công trình phía trên: đó là có nới rộng thêm 2 gian đầu hồi ở phần phía sau gần 2m để làm khu WC. Với thiết kế này không những không ảnh hưởng đến kiến trúc phía trước và cảnh quan tổng thể, mà lại giúp diện tích phòng ngủ sử dụng được tối đa, đảm bảo rộng rãi thoải mái cho sinh hoạt.

2. Mặt bằng nhà 3 gian 2 chái kiểu hiện đại

Mẫu mặt bằng nhà 3 gian 2 chái mà chúng tôi giới thiệu dưới đây cũng chính là mẫu nhà rất được yêu thích những năm gần đây tại Nhà gỗ AFP Nam Thành Phát bởi lối kiến trúc hiện đại mới mẻ pha trộn với những nét văn hóa truyền thống tạo nên sự giao thoa kiến trúc độc đáo mà hài hòa không ngờ.

Hình ảnh nhà gỗ 3 gian 2 chái với 2 chái đầu hồi xây gạch.

Nhà 3 gian 2 chái với 2 tường đầu hồi phía trước xây gạch không chát mộc mạc, kết hợp thêm cửa sổ chữ Thọ đắp men tạo nên sự thông thoáng, mát mẻ hơn cho phòng ngủ. Phần mái thay vì ngói mũi hài truyền thống, ở đây sử dụng ngói âm dương với 1 viên âm và 1 viên dương tạo thành 1 cặp đan xen kết nối liền mạch, chặt chẽ và vô cùng đẹp mắt.

Mặt bằng nhà 3 gian 2 chái với 2 chái xây gạch

=> Mặt bằng nhà 3 gian 2 chái Bắc Bộ cho ta một số thông số kỹ thuật:

+ Kích thước phủ bì căn nhà: 16m*10m, với kích thước gian giữa 3,2m, 2 gian bên 3,1m và 2 gian đầu hồi 3,19m.

+ Nhà 3 gian 2 chái tường xây gạch có 4 vì với tổng 18 cột gỗ, trong đó 6 cột cái D35cm, 8 cột quân D33cm và 4 cột hiên D31cm.

+ Ngoài cửa nách từ 3 gian giữa mở sang buồng, ở đây căn nhà còn bố trí thêm cửa nách hiên để thuận tiện hơn cho việc đi lại, tránh không phải bước qua gian giữa những khi gia đình có công việc thờ cúng hoặc tiếp khách.

+ Thiết kế phòng ngủ vô cùng rộng rãi và tiện nghi với nhà WC khép kín cùng giường ngủ, tủ quần áo, bàn làm việc và bàn uống nước, đọc sách...

Xem thêm chi tiết mẫu nhà tại video:

3. Mặt bằng nhà gỗ 3 gian 2 chái kết hợp nhà bếp liền kề tiện nghi

Hình ảnh chính diện nhà 3 gian 2 chái cực độc đáo và mới lạ.

Nhà gỗ 3 gian 2 chái Bắc bộ có kết hợp nhà bếp liền kề.

Khác với nhà gỗ, công trình nhà bếp ở đây anh chủ yêu cầu kết hợp thêm phong cách hiện đại để quá trình sinh hoạt của gia đình được thoải mái và tiện nghi. Do đó không chỉ không gian nội thất mà phần cửa cũng được làm hệ nhôm kính kiểu mới để có tính đồng bộ với không gian bên trong. 

Xung quanh tường nhà bếp vẫn có kết hợp gạch thẻ không chát và mái ngói đỏ để không phá vỡ kiến trúc tổng thể.

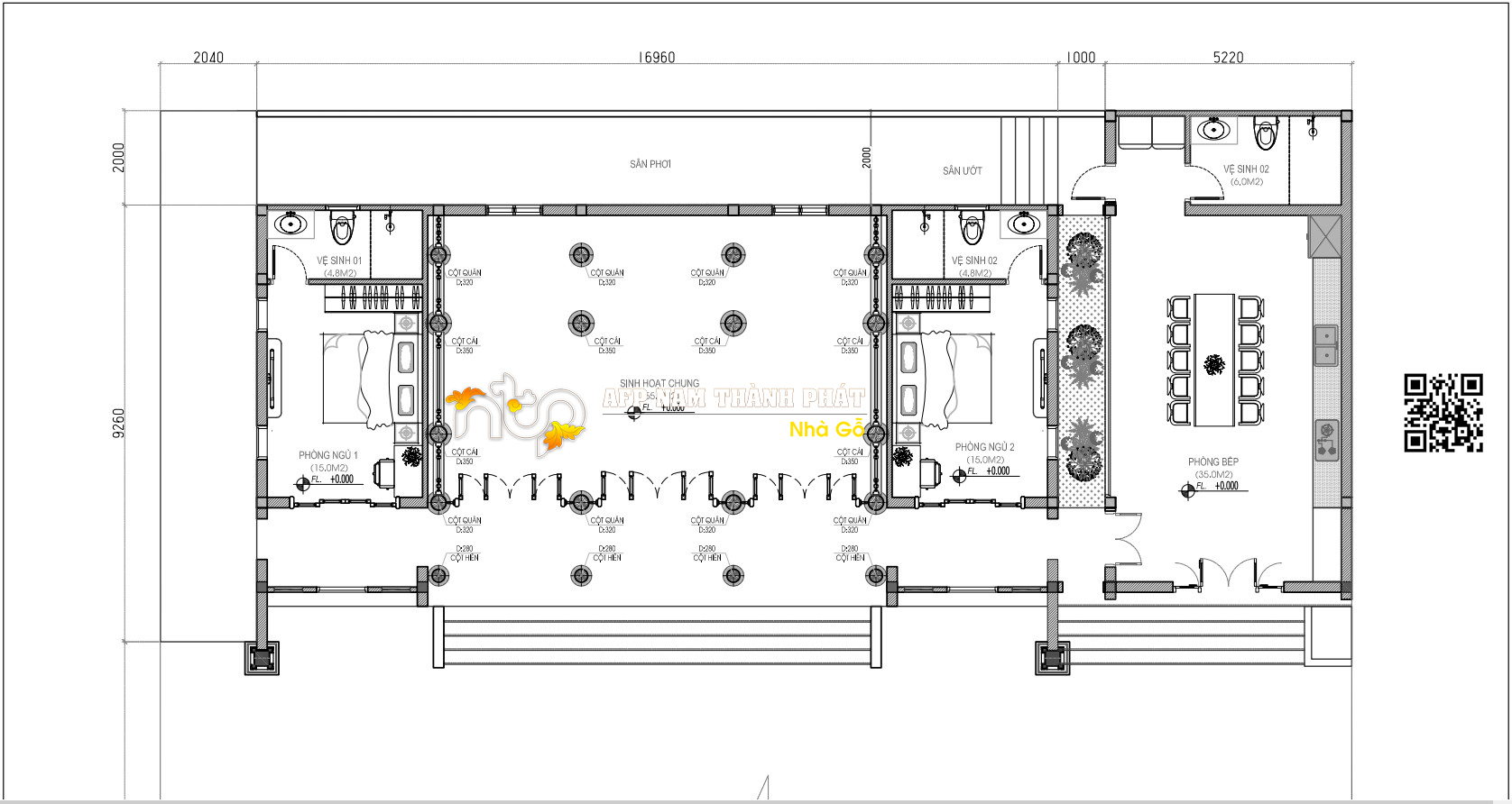
Mặt bằng nhà gỗ 3 gian 2 chái có kết hợp nhà bếp sinh hoạt hiện đại, tiện nghi.

Mặt bằng nhà 3 gian 2 chái cho ta thấy nhà gỗ có kích thước chiều ngang 16,96m, nhà bếp là 5,22m có kết hợp thêm 1m giếng trời trồng cây xanh nối giữa nhà chính và nhà bếp. Nhà 3 gian 2 chái vẫn bố trí theo kết cấu cơ bản với 3 gian giữa thờ cúng tiếp khách và 2 gian bên ngủ nghỉ. Gian bếp liền kề có tích hợp cả khu giặt phơi và lối dẫn ra sân ướt phía sau để tiện những hôm gia đình có cỗ bàn nấu nướng đông người.

Kiểu nhà liền kề này hiện nay cũng là 1 trong số những mẫu nhà rất được quý khách hàng yêu thích, vì ngôi nhà mang đến sự bình yên, dễ chịu cho những thành viên sinh sống dưới mái nhà, mà lại đáp ứng được đầy đủ các công năng phục vụ cho cuộc sống thường ngày.

III. Giới thiệu đơn vị thiết kế - thi công uy tín.

Là một trong những đơn vị nghiên cứu, am hiểu và giàu kinh nghiệm trong thiết kế và thi công các công trình nhà gỗ cổ truyền, với các mặt bằng nhà 3 gian 2 chái đẹp chuẩn phong thủy. Với vẻ đẹp tinh tế và sự gắn kết mạnh mẽ với văn hóa dân tộc, Nhà gỗ AFP Nam Thành Phát luôn luôn sẵn sàng đồng hành cùng quý khách để biến ước mơ tâm huyết của quý khách thành hiện thực, để cho ra đời những kiệt tác nhà gỗ.

Xưởng sản xuất nhà gỗ AFP Nam Thành Phát nằm ngay tại thị trấn trung tâm huyện Hải Hậu, rất thuận tiện về vị trí, quý khách có thể ghé qua thăm quan văn phòng và nhà xưởng của chúng tôi để có được cái nhìn khách quan nhất, giúp quý khách có thể hoàn toàn an tâm khi trao gửi công trình tâm huyết cả đời người.

=>Tìm hiểu chi tiết xưởng gỗ tại video:

Hãy gửi yêu cầu tư vấn cho đội ngũ nhân viên Nam Thành Phát qua số điện thoại Hotline 0986.396.893 hoặc 0858.937.999 để được hỗ trợ nhanh chóng và chính xác nhất.

Quý khách hàng có thể tham khảo một số mẫu nhà gỗ đẹp tại đây hoặc liên hệ ngay hotline để được tư vấn.

Mọi chi tiết xin liên hệ:

CÔNG TY CỔ PHẦN AFP NAM THÀNH PHÁT

Văn phòng: Km 185, quốc lộ 21A, khu 3, Thị trấn Yên Định, Hải Hậu, Nam Định

Xưởng sản xuấtKm 185, quốc lộ 21A, khu 3, Thị trấn Yên Định, Hải Hậu, Nam Định

 Hotline0858 937 999 

 Email: namthanhphat.ac@gmail.com♦

 Websitehttps://namthanhphat.com.vn/

 Fanpagehttps://www.facebook.com/afpnamthanhphat  

 Kênh Youtubehttps://www.youtube.com/c/ 

 

 

 

Back to top