Trong xu hướng kiến trúc hiện nay, khi nhu cầu sinh hoạt tiện nghi ngày càng cao nhưng giá trị truyền thống vẫn luôn được trân trọng, nhà gỗ 3 gian trên tầng 2 trở thành lựa chọn lý tưởng của nhiều gia đình. Mô hình này cho phép tách biệt rõ ràng giữa không gian ở hiện đại phía dưới và không gian nhà gỗ trang nghiêm phía trên, vừa đảm bảo công năng sử dụng, vừa giữ trọn nếp nhà xưa.
Bài viết dưới đây Nam Thành Phát giới thiệu đến quý vị 1 mẫu thiết kế nhà gỗ 3 gian trên tầng 2 điển hình. Với trọn bộ hồ sơ thiết kế từ phối cảnh 3D đến hồ sơ thi công chi tiết. Từ đó giúp quý vị có thêm những sự lựa chọn tối ưu cho công trình tương lai của gia đình, dòng họ mình.

Phối cảnh tổng thể khuôn viên nhà gỗ có cổng tường rào bao quanh kiên cố.
Ý tưởng thiết kế: đưa không gian nhà gỗ lên cao, tạo sự trang nghiêm và thông thoáng, tách biệt hẳn với không gian sinh hoạt tầng 1.
Phù hợp với khu đất có diện tích vừa phải, những gia đình có nhiều thế hệ cùng sinh sống.
Diện tích sàn tầng 1 phủ bì 152m2.
Công năng tổng thể:
+ Tầng 1: nhà xây hiện đại là không gian sinh hoạt của gia đình.
+ Tầng 2: nhà gỗ 3 gian làm không gian thờ tự – tiếp khách truyền thống. Kết hợp 1 gian trái bên cạnh bố trí 1 phòng ngủ và khu vực cầu thang trong nhà.

Hướng nhìn chính diện công trình
Khối nhà xây vững chắc tầng 1 làm nền đỡ cho nhà gỗ phía trên. Sự kết hợp khéo léo giữa vật liệu hiện đại và kiến trúc truyền thống tạo nên sự giao thoa độc đáo và ấn tượng.
Thiết kế nhà gỗ trên tầng 2 theo chuẩn truyền thống Bắc bộ.
Hệ mái ngói truyền thống, độ dốc tiêu chuẩn 68% - tỉ lệ vàng về khả năng thoát nước.
Hàng cột gỗ, cửa bức bàn, vì kèo hiên được thể hiện rõ trong phối cảnh 3D.
Lan can, gạch bông thông gió hoa văn cách điệu, vừa đảm bảo an toàn vừa tăng tính thẩm mỹ.

Bố trí thiết kế với hình thức liên kết giữa 2 tầng. Tỷ lệ hình khối cân đối, tạo cảm giác bề thế nhưng không nặng nề.

Thiết kế gian trái vô cùng khoa học và mới lạ, nối liền với công trình nhà thờ 3 gian. Hình thức gạch xây không trát mộc mạc, đồng bộ với kiến trúc truyền thống của nhà gỗ nằm ngay cạnh.

Cầu thang ngoài và không gian chuyển tiếp liền mạch.
Cầu thang ngoài dẫn thẳng lên nhà gỗ tầng 2, tách biệt giao thông sinh hoạt. Đây chính là giải pháp giúp việc thờ cúng, tiếp khách truyền thống không ảnh hưởng đến sinh hoạt tầng dưới.
Dưới chân cầu thang có bố trí một tiểu cảnh non bộ và bể cá nhỏ. Đây cũng là góc chill mà gia chủ đặc biệt yêu thích, giúp anh xua tan đi những mệt mỏi, xô bồ ngoài kia.

Thiết kế nhà nhiều cửa sổ để không gian nhà luôn được thông thoáng, đón được nhiều ánh sáng tự nhiên và gió trời.
Hệ cửa cánh kính khung gỗ màu nâu trầm vừa mang nét hiện đại sang trọng, lại cũng vừa có nét truyền thống mộc mạc.
1. Hồ sơ kiến trúc tổng thể
Hồ sơ kiến trúc là phần cốt lõi trong bộ hồ sơ thiết kế, thể hiện hình thức, không gian, công năng sử dụng và giá trị thẩm mỹ của công trình. Đây là cơ sở trực tiếp để triển khai thi công đúng ý tưởng thiết kế và đúng mong muốn của gia chủ.

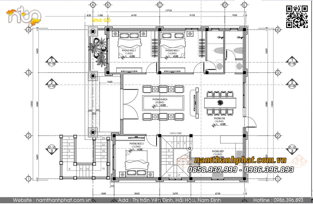
Mặt bằng công năng tầng 1
Kích thước phủ bì sàn tầng 1 ngang*sâu là 12m*12m72. Công năng gồm có: phòng khách + 3 ngủ + bếp ăn + 2WC và cầu thang trong nhà.

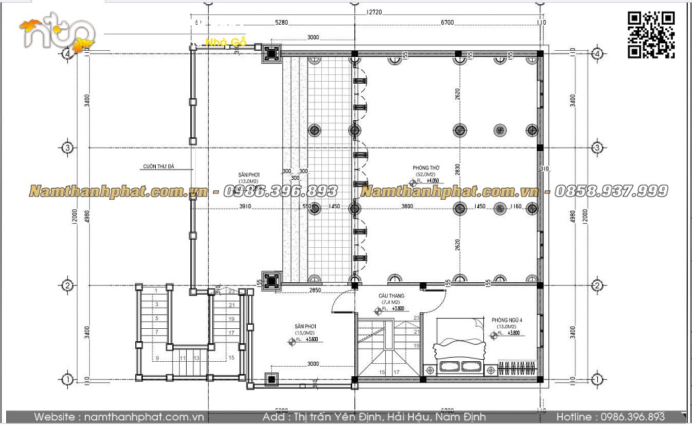
Mặt bằng công năng tầng 2
Nhà gỗ 3 gian tầng 2 có kích thước gian giữa 2m83 và 2 gian bên là 2m62. Căn nhà có tổng 10 cột đủ và 12 cột nửa, với đường kính các cột lần lượt là 32, 29 và 26cm. Ngay bên cạnh là gian trái với công năng 1 phòng ngủ rộng 13m2 và cầu thang trong nhà không sợ mưa nắng.

Mặt đứng mặt tiền.
Đây là hướng nhìn trực diện nhất, thể hiện toàn bộ hình dáng, tỷ lệ kiến trúc cũng như phong cách chủ đạo của ngôi nhà.

Mặt cắt vì giữa với kiến trúc nhà gỗ kẻ truyền kết hợp chồng rường đấu sen đồng bằng Bắc Bộ.

Mặt cắt vì thuận cho ta biết cách bố trí vách thuận với các bức tranh xen kẽ các bức vách đố lụa vỏ măng một cách khéo léo, hài hòa. Kiến trúc nhà gỗ trên vì thuận là lối chồng rường với hoa văn hoa lá tây điển hình của nhà gỗ cổ truyền.
2. Hồ sơ kết cấu
Nếu hồ sơ kiến trúc quyết định hình thức – thẩm mỹ, thì hồ sơ kết cấu chính là “xương sống” đảm bảo cho công trình đứng vững, an toàn và trường tồn. Các KTS, KS sẽ phân tích tải trọng, tính toán khả năng chịu lực. Từ đó đề xuất giải pháp kết cấu phù hợp với quy mô, địa chất và công năng sử dụng của công trình nhà gỗ 3 gian trên tầng 2.
Hồ sơ kết cấu sẽ bao gồm các bản vẽ kết cấu chi tiết (móng, dầm sàn, mái, cầu thang,..) và bảng thống kê vật liệu cụ thể.
Mặt bằng kết cấu móng tầng 1
Địa chất đất nhà khách hơi yếu, nên hình thức móng cọc sẽ là phù hợp hơn cả.

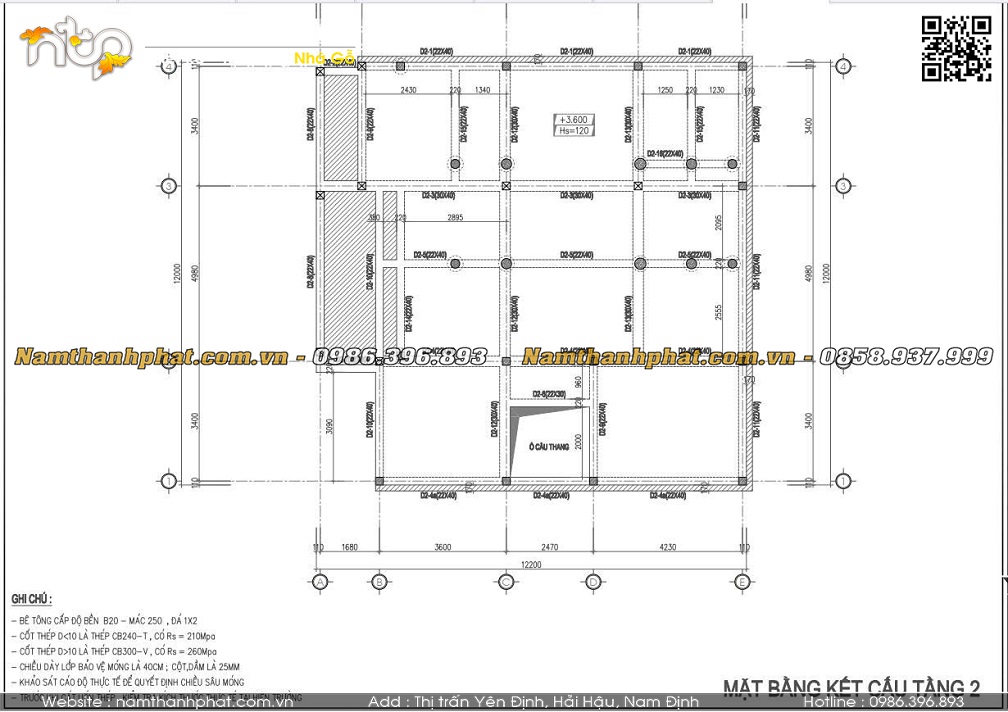
Mặt bằng kết cấu dầm sàn tầng 2.
3. Hồ sơ điện nước
Hồ sơ điện nước thể hiện phương án cấp điện, cấp – thoát nước và bố trí thiết bị nhằm đảm bảo công trình vận hành an toàn, tiện nghi và bền bỉ trong quá trình sử dụng.

Hồ sơ điện: bản vẽ ổ cắm tầng 1
Hồ sơ điện nước chính là phần đảm bảo “sự sống” và tiện nghi hiện đại cho công trình. Giúp ngôi nhà không chỉ đẹp về kiến trúc, vững về kết cấu mà còn thuận tiện, an toàn trong quá trình sử dụng lâu dài.
Vai trò của hồ sơ thiết kế trong thi công nhà gỗ 3 gian trên tầng 2 là yếu tố then chốt, không thể phủ nhận. Việc thi công bám sát hồ sơ thiết kế mang lại nhiều lợi ích rõ rệt:
Thi công chính xác, hạn chế sai sót và phát sinh
- Dễ kiểm soát khối lượng, nguyên vật liệu và chi phí làm nhà do đã có dự toán chi tiết.
Đảm bảo tính thẩm mỹ, kỹ thuật và độ bền lâu dài. Do đã được tính toán cẩn thận, lên phương án cụ thể trước khi thi công.
- Đúng tiến độ dự kiến, tiết kiệm thời gian và tránh những tranh luận, điều chỉnh không cần thiết trong quá trình làm việc với tổ đội thi công. Khi mọi hạng mục đều đã có bản vẽ làm căn cứ triển khai.
Có thể thấy, nhà gỗ 3 gian trên tầng 2 không chỉ là giải pháp kiến trúc phù hợp với điều kiện sinh hoạt hiện đại, mà còn là cách gìn giữ và phát huy giá trị truyền thống trong không gian sống ngày nay. Việc đặt nhà gỗ trên cao giúp tối ưu diện tích sử dụng của khu đất, giúp công trình đạt được sự tôn nghiêm, thông thoáng và chuẩn phong thủy.
Với những ưu điểm vượt trội cả về kiến trúc lẫn công năng, mẫu nhà gỗ 3 gian trên tầng 2 được xem là xu hướng nhà gỗ đẹp, tiện nghi và đáng đầu tư nhất hiện nay.
📞 Liên hệ ngay Nam Thành Phát để được tư vấn miễn phí:
☎ Hotline/Zalo: 0986.396.893 (Giám đốc: Vũ Sơn) - 0858.937.999 (Trưởng phòng thiết kế)
👉 Đừng ngần ngại để lại thông tin tại đây, đội ngũ kiến trúc sư giàu kinh nghiệm sẽ hỗ trợ bạn nhanh chóng!
Tham khảo thêm các mẫu nhà gỗ trên tầng 2 đẹp
Mọi chi tiết xin liên hệ:
Fanpage: Gỗ Nam Thành Phát
Kênh Youtube: NHÀ GỖ NAM THÀNH PHÁT
Văn phòng thiết kế: Xã Hải Hậu, Tỉnh Ninh Bình (Nam Định cũ)
Xưởng sản xuất CS1: Xã Minh Thái, Tỉnh Ninh Bình
Xưởng sản xuất CS2: Khu làng nghề Xã Hải Anh, Tỉnh Ninh Bình