Kích Thước Nhà Gỗ 5 Gian 2 Buồng Lồi Chuẩn Bắc Bộ – Thông Số & Bản Vẽ Chi Tiết

Kích Thước Nhà Gỗ 5 Gian 2 Buồng Lồi Chuẩn Bắc Bộ – Thông Số & Bản Vẽ Chi Tiết

“Mái ngói rêu phong, hiên nhà cũ
Năm gian gỗ đỏ, gió ru chiều…”

Giữa dòng chảy hiện đại hối hả, ngày càng nhiều người tìm về những giá trị xưa cũ – nơi có căn nhà gỗ 5 gian mộc mạc, trầm mặc và gắn bó suốt cả 1 vùng ký ức dài. Nhưng để tái hiện đúng “hồn xưa đất Bắc”, việc nắm rõ kích thước nhà gỗ 5 gian chuẩn là điều không thể thiếu. Trong bài viết này, Nam Thành Phát sẽ đưa quý vị cùng khám phá chi tiết các kích thước nhà gỗ 5 gian 2 buồng lồi, thông số chuẩn Bắc Bộ và bản vẽ cụ thể. Tất cả dành cho những ai đang ấp ủ giấc mơ dựng nên một mái nhà truyền thống, chuẩn chỉnh từ thiết kế đến thi công.

I. Giới Thiệu Nhà Gỗ 5 Gian 2 Buồng Lồi

Nhà gỗ 5 gian 2 buồng lồi là kiểu nhà gỗ truyền thống Bắc bộ gồm 5 gian nhà, trong đó 2 gian buồng lồi (hay còn được gọi là chái) được xây rộng ra hết phần hiên. Tại gian buồng này thường sẽ làm cửa sổ chữ Thọ vừa đẹp mắt vừa mang lại sự thông thoáng cho gian buồng.

Mẫu nhà này được xem như là biểu tượng của kiến trúc Bắc bộ. Mang giá trị văn hóa lâu đời, căn nhà với vẻ đẹp vừa sang trọng, lại cũng vừa ấm áp, thân thuộc vô cùng.

Nhà gỗ 5 gian 2 buồng lồi đặc trưng của vùng đồng bằng Bắc bộ.

II. Các Thông Số Và Bản Vẽ Chi Tiết Của Mẫu Nhà Gỗ 5 Gian 2 Buồng Lồi Tiêu Chuẩn.

1. Phối cảnh 3D ngoại thất

Mẫu nhà gỗ 5 gian buồng lồi đặc trưng của kiến trúc Bắc bộ.

2 gian buồng làm lồi ra hết phần hiên, tại đây có chạm trổ 2 bức tranh phong cảnh ở hồi hiên đẹp mắt. Phần mặt tiền là mẫu cửa sổ chữ Thọ tròn cách điệu kết hợp thêm các ván bưng hoa lá nhẹ nhàng.

Mẫu nhà gỗ 5 gian đặt trong khuôn viên xanh mát có kết hợp thêm các hạng mục khác như nhà ngang, lầu lục giác, tiểu cảnh hồ cá, sân vườn...vô cùng lý tưởng.

=> Xem thêm chi tiết tại video: 

2. Bản vẽ mặt bằng

Mặt bằng nhà gỗ 5 gian 2 buồng lồi.

Mặt bằng là bản vẽ quan trọng đầu tiên cung cấp cho ta những kích thước cơ bản của 1 ngôi nhà. Từ mặt bằng có thể thấy một số kích thước nhà gỗ 5 gian như:

  • Kích thước phủ bì ngang*sâu là 16m3*9m5. Trong đó gian giữa là 3m22, các gian còn lại là 3m02.
  • Tổng số cột: 20 cột gỗ, đường kính các cột lần lượt là 36cm, 33cm, 30cm.
  • Khoảng hiên rộng 1m45, lòng nhà 5m6
  • Nhà WC được bố trí hẳn ra phía sau do quỹ đất còn rộng. Thiết kế tách biệt WC để không gian phòng ngủ được rộng rãi, tiện nghi.

2. Bản vẽ mặt đứng, mặt cắt

Mặt đứng nhà gỗ 5 gian

Bản vẽ mặt đứng thể hiện hình dáng bên ngoài của công trình nhìn từ các hướng khác nhau. Ở đây là hướng mặt chính dưới dạng hình chiếu vuông góc. Nó cho thấy hình dạng, tỷ lệ, và các chi tiết kiến trúc, giúp người xem hình dung được diện mạo bên ngoài của công trình. 

Mặt cắt vì giữa nhà gỗ 5 gian

Từ bản vẽ mặt cắt vì giữa ta thấy được hình thức kiến trúc, các kích thước nhà 5 gian 2 buồng lồi về chiều cao như:

  • Chiều cao gót tàu mái là 2m82, độ dốc mái 68% - tỉ lệ vàng về khả năng thoát nước
  • Chiều cao đáy hoành cột hiên là 3m4
  • Chiều cao đáy hoành cột quân là 4m38
  • Chiều cao đáy hoành cột cái là 5m4
  • Kiến trúc chồng rường kết hợp kẻ truyền thể hiện ở kẻ hiên và kẻ ngồi tạo sự mềm mại, thanh thoát.

Mặt cắt vì thuận nhà gỗ 5 gian

Bố trí tranh trên vách thuận được các KTS tính toán kỹ lưỡng, tạo sự cân đối, khoa học và nịnh mắt. Có thể thấy kiến trúc ở vì thuận là kiến trúc chồng rường để phù hợp bố trí tranh - có sự khác biệt so với kiến trúc ở vì giữa.

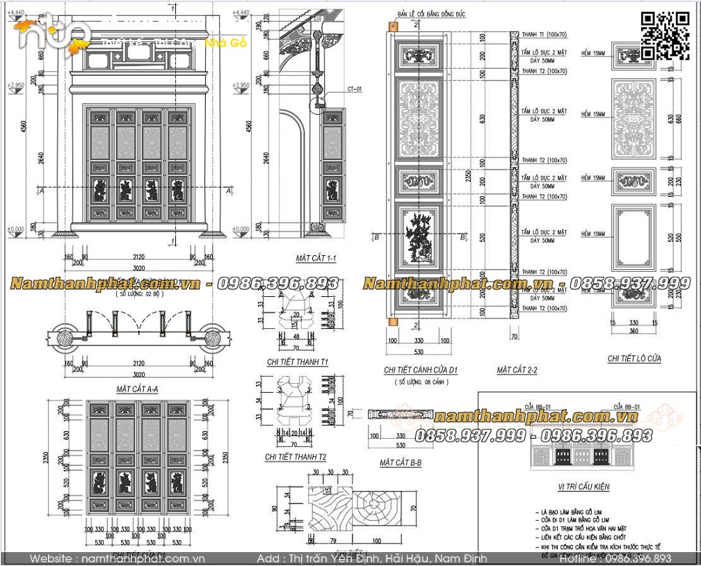
3. Bản vẽ chi tiết cửa, cấu kiện.

Bản vẽ chi tiết cấu kiện vì giữa

Bản vẽ chi tiết cấu kiện vì thuận.

Bản vẽ cho ta kích thước cụ thể các cấu kiện từ to đến nhỏ như: kẻ hiên, kẻ ngồi, hệ thống các xà, các con bò, hoành, thượng lương...

Bản vẽ chi tiết cửa bức bàn

Cửa bức bàn 4 cánh ở đây có kích thước thông thủy 2m12*2m35. Cửa bức bàn đục chạm 2 mặt ván dày 5cm, khung đố 10cm*7cm.

Ngoài ra hồ sơ kiến trúc chi tiết sẽ có đầy đủ bản vẽ các chi tiết cấu kiện khác như cửa sổ chữ Thọ, vách thông phong, khung tranh, bờ mái, lan can đá, tam cấp, cột đồng trụ, cột hiên đá....

=> Xem thêm kích thước nhà gỗ 3 gian chuẩn phong thủy tại đây

V. Một số mẫu nhà gỗ 5 gian 2 buồng lồi đẹp

1. Mẫu nhà gỗ 5 gian 2 buồng lồi kích thước size trung bình

Đây có thể coi là căn nhà tiêu chuẩn được yêu thích nhất - là "hoa hậu" trong tất cả các mẫu nhà gỗ 5 gian 2 buồng lồi hiện có tại Nam Thành Phát. Không chỉ bởi vẻ đẹp trau chuốt, tỉ mỉ... mà điều quan trọng là các kích thước của căn nhà được tính toán vô cùng kỹ lưỡng, cẩn thận, khoa học.

  • Kích thước phủ bì: 16m32*9m. Gian giữa 3m22, các gian còn lại là 3m02. Lòng nhà rộng 6m48 và hiên rộng đến 1m75 đảm bảo cho sinh hoạt tiện nghi, rộng rãi.
  • Tổng cộng 20 cột gỗ trong đó đường kính các cột lần lượt là 36, 33 và 29cm.

Một góc nhìn khác của căn nhà khi về đêm đầy mới lạ và độc đáo.

=> Xem thêm quá trình thi công nhà gỗ 5 gian 2 buồng lồi của gia chủ Vĩnh Phúc tại đây.

2. Mẫu nhà gỗ 5 gian 2 buồng lồi kích thước size lớn

Nhà gỗ 5 gian 2 buồng lồi ấn tượng bởi chất liệu gỗ Lim Lào thượng hạng, hệ vân gỗ đẹp mắt nổi bật.

Mẫu nhà kích thước lớn phù hợp với những quỹ đất khuôn viên rộng, gia chủ có ngân sách dư dả, yêu thích sự bề thế, hoành tráng và đẳng cấp. 

  • Kích thước phủ bì: 19m22*10m73. Gian giữa 3m9 và 4 gian còn lại là 3m6 - các bước gian đều rơi vào cung đỏ theo thước Lỗ ban.
  • Tổng cộng 26 cột gỗ trong đó đường kính các cột lần lượt là 40, 38 và 35cm.

Từng đường nét chạm khắc kênh bong, tỉ mỉ trên nếp nhà gỗ cổ truyền 5 gian mang những dấu ấn văn hóa của một vùng quê Bắc bộ với nền văn minh lúa nước. Vậy nên các hoa văn, mẫu mã cũng có phần gẫn gũi, thân quen vô cùng.

3. Mẫu nhà gỗ 5 gian 2 buồng lồi cột hiên đá

Mẫu nhà độc đáo bất chấp mưa nắng, chống chọi bền bỉ với thời tiết Việt Nam.

Việc sử dụng các chất liệu như cột hiên đá siêu bền chắc, gạch xây không trát chống thấm giúp căn nhà trụ vững với thời tiết và thời gian. Một số thông số nhà gỗ 5 gian cột hiên đá như sau:

  • Kích thước phủ bì: 15m87*9m. Gian giữa 3m21, gian bên 2m82 và 2 gian buồng là 3m4
  • Tổng cộng 18 cột trong đó 14 cột gỗ đường kính 36cm, 32cm và 4 cột hiên đá.

Một mẫu nhà gỗ 5 gian đẹp phù hợp với cuộc sống hiện đại ngày nay, kết hợp công năng thờ cúng và ngủ nghỉ sinh hoạt đa năng.

2. Mẫu nhà gỗ 5 gian 2 buồng lồi kích thước size nhỏ

Mang đến vẻ đẹp mộc mạc, có phần hoài niệm - mẫu nhà 5 gian 2 buồng lồi được thiết kế riêng cho gia chủ tại một vùng quê ngoại thành Hà Nội. Sự kết hợp của các hạng mục đá như cột hiên đá, cột đồng trụ đá, cánh phong đá mang đến vẻ đẹp uy nghiêm, trang trọng.

  • Kích thước phủ bì: 11m6*7m86, 3 gian giữa 2m2 và 2 gian buồng là 2m12.
  • Tổng 18 cột gỗ và 2 cột hiên đá, đường kính các cột lần lượt là 20, 27, 25cm.

Mẫu thiết kế nhà gỗ 5 gian ở đây phù hợp với các gia đình quỹ đất hẹp, nhu cầu sử dụng ít, đơn giản hoặc ngân sách hạn chế.

=> Tham khảo thêm một số mẫu nhà gỗ 3 gian size nhỏ tại đây

IV. Lưu ý khi xác định kích thước nhà gỗ 5 gian

Để lựa chọn được kích thước nhà gỗ 5 gian đẹp và phù hợp nhất cho gia đình, gia chủ cần lưu ý đến một số vấn đề như:

  • Các yếu tố ảnh hưởng: phong thủy, thế đất, hướng nhà để công trình được thông thoáng, cân đối, hợp phong thủy.
  • Cách tính gian theo thước Lỗ Ban: nên chọn vào cung đỏ, vượng khí, tài lộc tránh những điều không may để gia đình an tâm sinh sống về sau.
  • Lựa chọn kích thước phù hợp nhu cầu sử dụng, tránh lãng phí tài nguyên đất cũng như ngân sách.

VI. Nam Thành Phát - Đơn Vị Thiết Kế & Thi Công Nhà Gỗ 5 Gian Uy Tín

Là một trong những đơn vị am hiểu và giàu kinh nghiệm trong thiết kế, thi công nhà gỗ 5 gian 2 buồng lồiNhà gỗ Nam Thành Phát luôn sẵn sàng đồng hành cùng quý khách. Từ đó biến ước mơ tâm huyết của quý khách thành hiện thực.

Nhà xưởng của chúng tôi nằm ngay trên trục đường quốc lộ chính, rất thuận tiện về vị trí. Đội ngũ thợ tay nghề cao có kinh nghiệm lâu năm, tâm huyết luôn sẵn lòng phục vụ quý khách. Giúp quý khách có thể hoàn toàn an tâm khi trao gửi công trình tâm huyết cả đời người.

Nếu quý vị đang có ý định xây dựng một căn nhà gỗ 5 gian 2 chái thật đẹp, độc đáo, đẳng cấp và chuẩn phong thủy, thì hãy nhấc máy lên và gọi ngay cho Nam Thành Phát. Chúng tôi sẽ thiết kế và thi công trọn gói đến khi quý khách hàng ưng ý.

📞 Liên hệ ngay Nam Thành Phát để được tư vấn miễn phí:

 0986.396.893 (Giám đốc: Vũ Sơn) - 0858.937.999 (Trưởng phòng thiết kế)

📩 Website: namthanhphat.com.vn
👉 Đừng ngần ngại để lại thông tin tại đây, đội ngũ kiến trúc sư giàu kinh nghiệm sẽ hỗ trợ bạn nhanh chóng!

VII. Câu hỏi thường gặp

1. Kích thước nhà gỗ 5 gian 2 buồng lồi có bắt buộc cố định không?

Kích thước nhà gỗ 5 gian là không cố định, mà linh hoạt thay đổi tùy thuộc vào nhiều yếu tố như: kích thước đất, nhu cầu công năng, mức đầu tư của gia chủ...

2. Nhà gỗ 5 gian làm bao nhiêu cột thì đạt tiêu chuẩn?

Hiện nay không có quy chuẩn nào về số lượng cột của 1 nếp nhà gỗ 5 gian cả. Các công trình của Nam Thành Phát số lượng cột cũng rất đa dạng: 18, 20, 22, 26.. cột, tùy thuộc vào diện tích nhà, sở thích cũng như mức đầu tư của gia chủ.

3. Nên làm chiều cao bao nhiêu thì phù hợp?

Hiện nay tính chiều cao cột và nhà sẽ căn cứ vào chiều cao gót tàu mái và độ dốc mái theo 1 tỉ lệ nhất định. Chiều cao gót tàu mái đẹp thường được sử dụng như: 2m55, 2m62, 2m75, 2m82 và 3m02... Với những căn nhà có kích thước nhỏ nên để gót tàu mái thấp hơn. Những căn nhà có kích thước lớn nên để gót tàu mái cao để căn nhà cân đối và thông thoáng.

Mọi chi tiết xin liên hệ:

CÔNG TY TNHH GỖ NAM THÀNH PHÁT

Hotline: 0858.937.999

FanpageGỗ Nam Thành Phát

Kênh YoutubeNHÀ GỖ NAM THÀNH PHÁT

Văn phòng thiết kế: Thị trấn Yên Định, Hải Hậu, Nam Định

Xưởng sản xuất CS1: Xã Trực Đại, Trực Ninh, Nam Định

Xưởng sản xuất CS2: Khu làng nghề Hải Anh, Hải Hậu, Nam Định

 

Back to top